kjp CONSULTING

Kempinski Hotel

place:

Frankfurt am Main, Gravenbruch

Services provided:
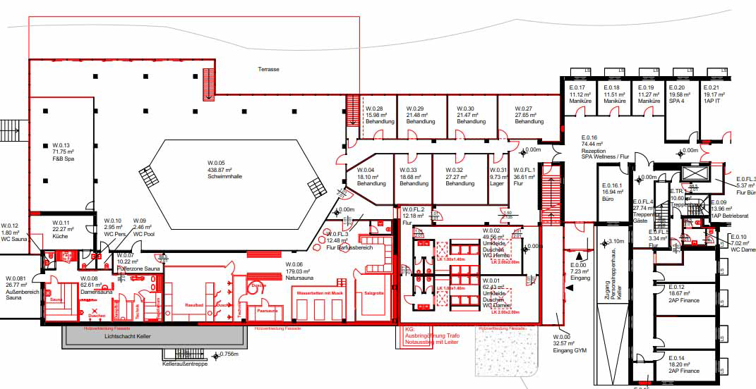
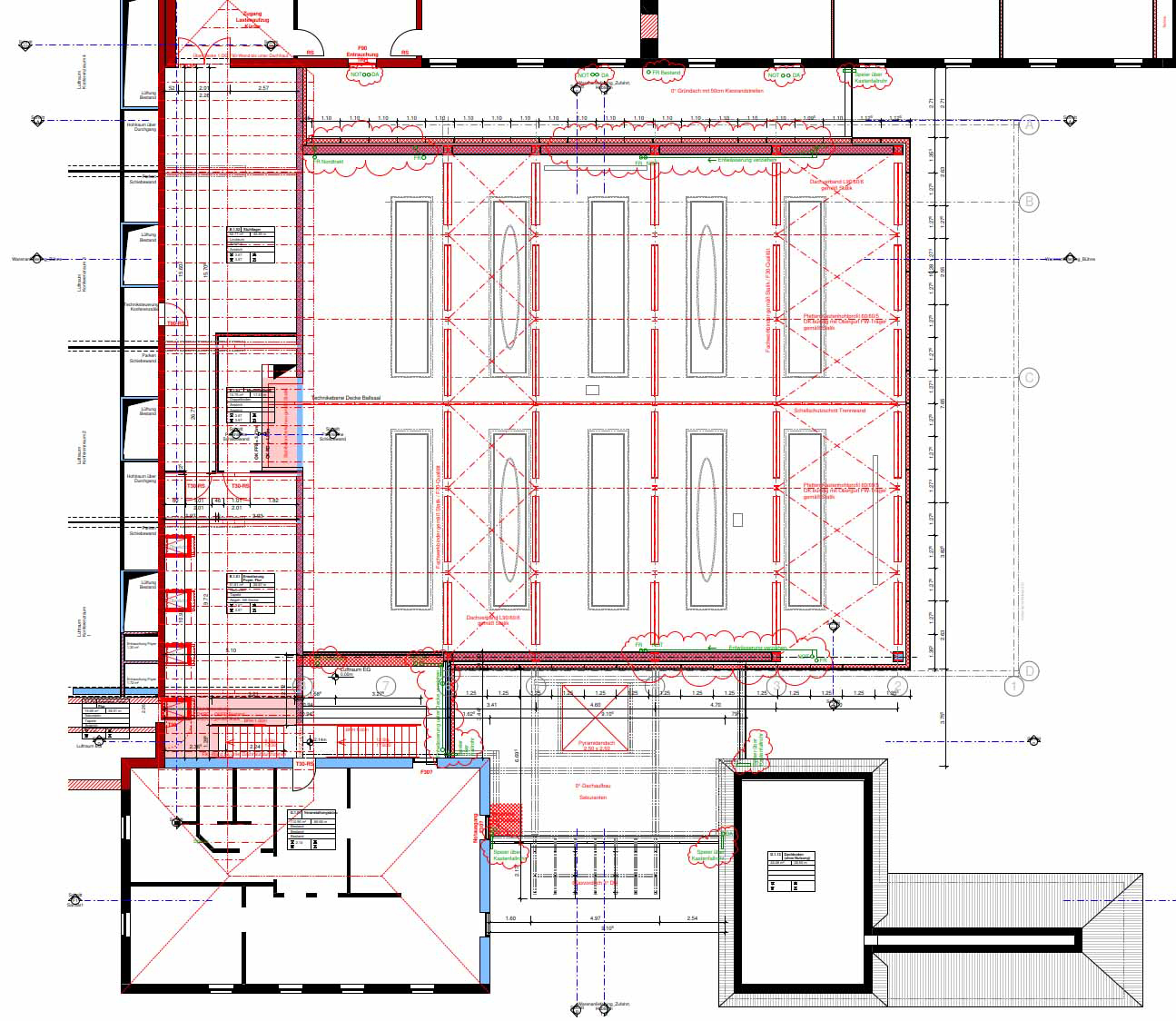
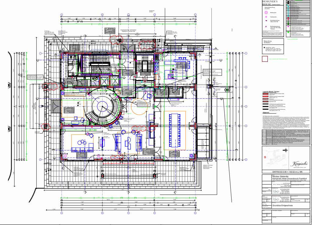
General planning and project management, expansion and renovation of lobby, smokers’ lounge, and restaurant, renovation of standard hotel rooms, executive, park, and presidential suites, expansion and partial new construction of wellness area, new construction of delivery area and ballroom, new construction of guest house, and completion of facades.